YZ型75/20~125/32噸雙梁鑄造橋式起重機
YZ Type 75/20~125/32t Double-beam Cast Bridge Crane
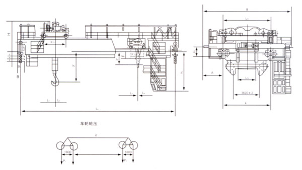
YZ型雙梁鑄造橋式起重機是我公司主要生產的產品之一,圖紙:

※ 如果您對我公司及我們的產品感興趣,歡迎到我公司或者我公司當地辦事處來拜訪或來電咨詢洽談!※
YZ型雙梁橋式鑄造起重機產品說明:
鑄造起重機是煉鋼連鑄工藝中的主要設備。主要用于吊運和轉運液態鋼包。
從總體構造可分為雙梁雙軌、四梁四軌、四梁六軌等型式。前兩種一般用于中、大噸位鑄造起重機,第三種一般用于特大噸位鑄造起重機。
我公司設計制造的鑄造起重機有技術先進、結構新穎、安全可靠、經濟耐用、維護簡單等特點。
另外我們的鑄造起重機可提供以下功能,供用戶選配:
1.可旋轉吊具
2.龍門鉤鉤距可變
3.載荷的稱重及顯示
冶金起重機:是制依靠沿廠房軌道方向的縱向移動、小車的橫向移動和吊鉤的升降運動來進行工作。適用于金屬冶煉車間,符合JB/T7688.1-95及JB/T7688.15-95標準的用于吊運熔融金屬的專用起重機。冶金起重機應用 一般適用于-10℃到+50℃的環境溫度,在40℃的溫度下相對濕度不超過50?,所吊運的熔融金屬對鍛鉤、板鉤的輻射溫度不超過300℃。工作級別:A7、A8用于相對繁忙的冶金鑄造車間YZ型-冶金橋式起重機,天車,行車,
適用范圍:
冶金起重機主要適用于金屬冶煉、扎制和熱加工等的專用起重機。其中包括平爐加料橋式起重機,天車,行車,、地面加料起重機、料箱起重機、脫錠起重機、整模起重機、揭蓋起重機、夾鉗起重機、板坯翻轉起重機、鍛造起重機、加熱爐裝取料起
重機、料箱-電磁起重機、料箱-抓斗起重機。其他類似的冶金起重機也可參照使用 。
使用環境條件:
冶金起重機(以下簡稱起重機)的設計、制造應符合GB3811、本標準和產品圖樣的有關規定。
1.環境條件
1.1 起重機的電源一般為三相交流,頻率為50Hz,電壓為380V。電動機和電器上允許電壓波動的上限為額定電壓的+10%,下限(尖峰電流時)為額定電壓的-15%,其中起重機的內部電壓損失,對脫錠起重機、夾鉗起重機、具有導架的整模起重
機和板坯翻轉起重機不超過5%,本標準中其他類型的起重機應不超過4%。如電源有特殊要求時,可按用戶需要,由供需雙方協商確定。
1.2 起重機安裝使用地點的海拔高度不超過2000m(超過1000m時應按GB755的有關規定對電動機容量進行校核).
1.3 起重機的工作環境溫度和濕度 a. 起重機的工作環境溫度一般為-10~+50℃。b. 在+40℃的溫度下相對濕度不超過50%。
1.4 使用起重機的場地不得有易燃、易爆以及腐蝕性氣體并應符合有關標準和文件的規定.
1.5 起重機運行軌道的安裝一般應符合GB10183的要求,如遇特殊情況可按需要另行規定.
YZ橋式起重機,天車,行車,適用于廠礦、企業的車間、倉庫等,在室內或露天的固定跨間作一般裝卸及起重運輸工作。
本機按使用繁忙程度分為中級與重級兩種工作制度;中級適用于機械加工,金屬結構,裝配等車間;重級適用于冶煉車間和參加連續生產的搬運工作。
本機由箱形橋架,大車運行機構、小車、電氣設備四部分構成。全部機構均在操作室內操縱。
露天使用時,帶有防雨設備。
YZ型75-500噸吊橋式起重機,天車,行車,是采用國際先進標準制造的系列產品。整機結構新穎、造型美觀、工藝性好、操作靈活平穩、安全可靠。
YZ型雙梁橋式鑄造起重機的優點和特點:
整機結構新穎、造型美觀、工藝性好、操作靈活平穩、安全可靠。
咨詢熱線:15516179631
您當前的位置: