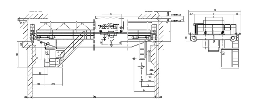
本起重機有兩臺小車,兩小車可以同時使用,也可以單獨使用,適用于廠礦企業的車間或露天倉庫吊運長件材料(木材,紙筒,管封,棒材)。
Double—trolley Bridge Crane
With two trolleys that works simultaneously or separately,this crane is suitable to lift long materials(wood,paper tube,pipe and bar)in workshops or outdoor stores in factories and mines.
注: 1.大車導電有角鋼和安全滑觸線兩種形式,供選擇。
2.操縱形式有室操(分開式和閉式),地操和遙控三種,供選擇。


※ 如果您對我公司及我們的產品感興趣,歡迎到我公司或者我公司當地辦事處來拜訪或來電咨詢洽談!※
咨詢熱線:15516179631
您當前的位置: